Ready to build your brand?
Contact
info@promedivn.com.vn
02439350887/8
Tiếng Việt (Việt Nam)
English (United States)
Home page
Introduction
Services
News
Recruitment
Contact
Services
Menu
24/7 Support
02439350887/8
Đặt lịch tư vấn
Home page
Main Projects
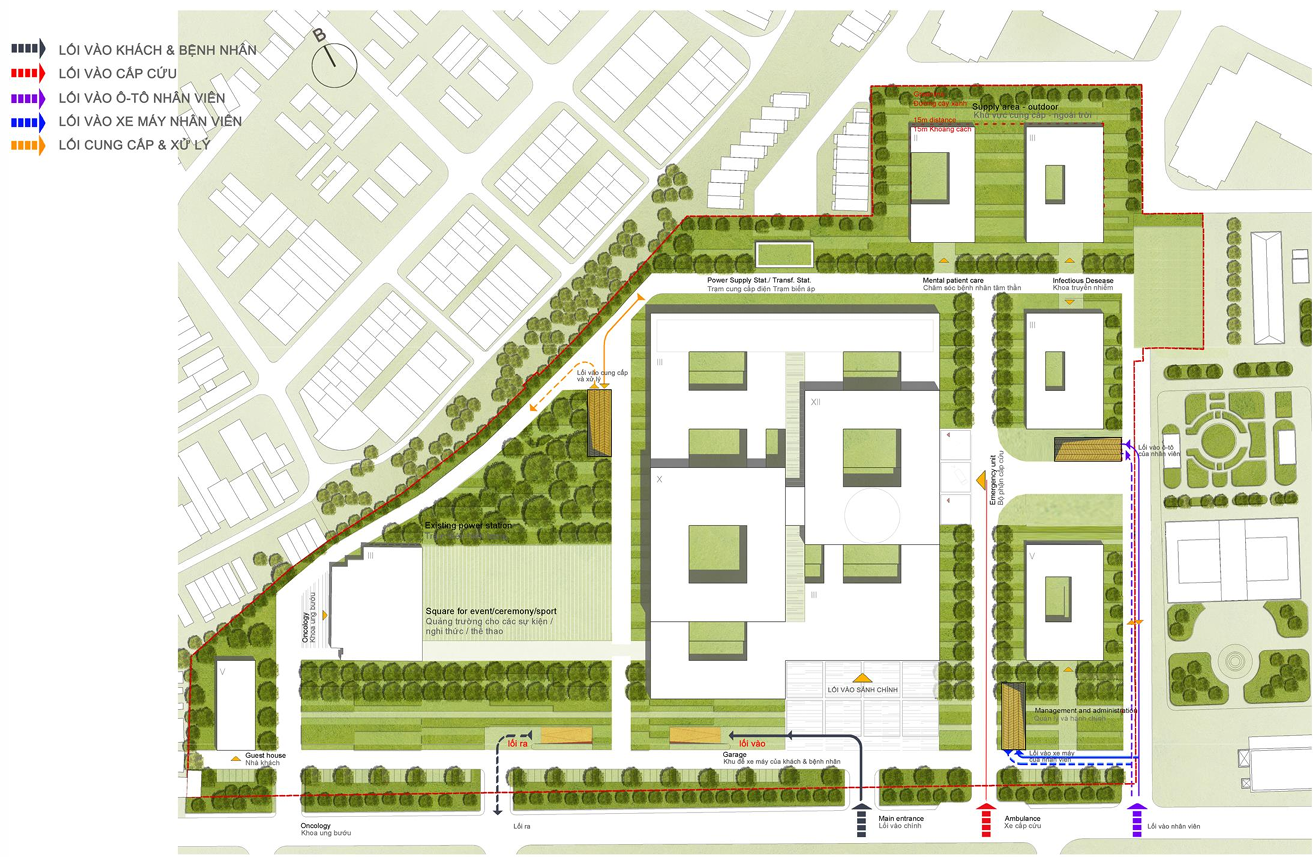
PROJECT: MILITARY HOSPITAL 103/MILITARY MEDICAL UNIVERSITY
Hotline tư vấn
02439350887/8