Bạn đã sẵn sàng xây dựng thương hiệu?
Liên hệ
info@promedivn.com.vn
02439350887/8
Việt Nam
Tiếng Anh
Trang chủ
Về chúng tôi
Dịch vụ
Tin tức
Tuyển dụng
Liên hệ
Dịch vụ
Menu
Hỗ trợ 24/7
02439350887/8
Đặt lịch tư vấn
Trang chủ
Dự án chính
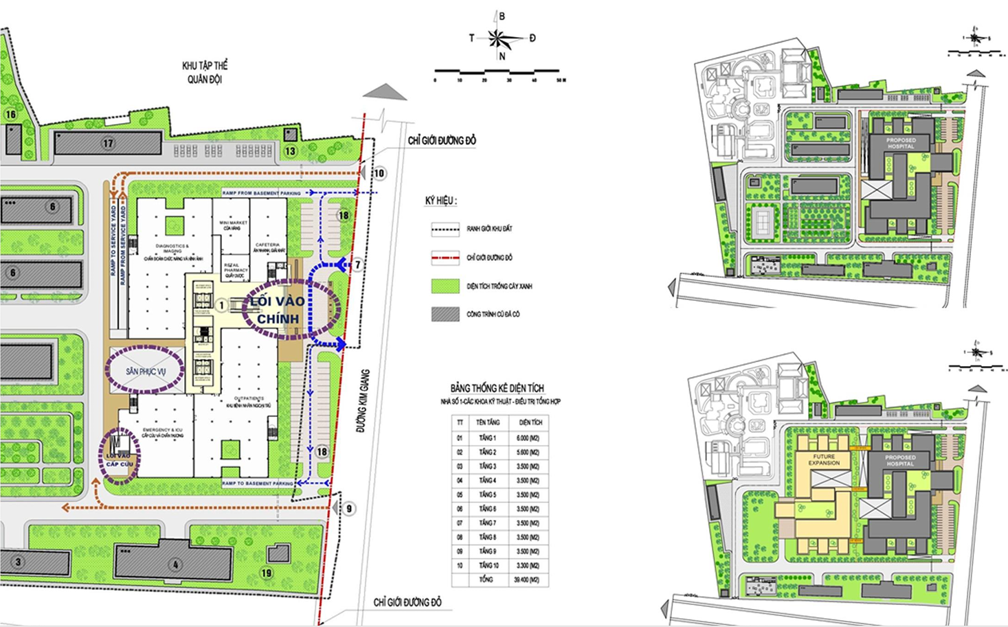
DỰ ÁN: VIỆN Y HỌC CỔ TRUYỀN QUÂN ĐỘI
Hotline tư vấn
02439350887/8